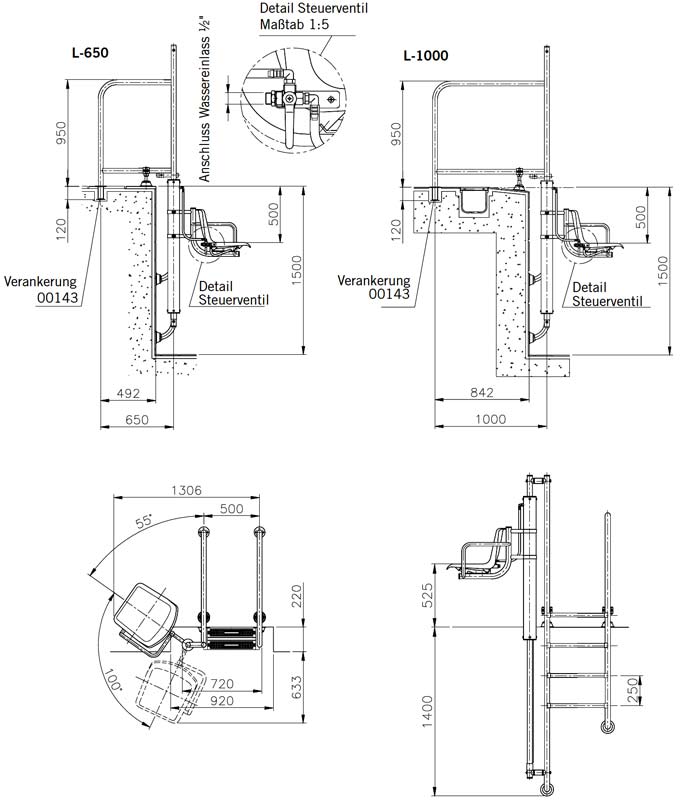
Hebesitz für Behinderte - hydraulisch 650 mm
8.205,87 €
Haben Sie Fragen zu diesem Produkt?
Gern beraten wir Sie in einem persönlichem Gespräch.
Hydraulischer Lift / Hebesitz für Behinderte ( Hydraulic lift for disabled access )
Ausführung 650 mm, für Becken ohne Überlaufrinne ( Skimmerbecken )
Für therapeutische Schwimmbecken und als Alternative zu den Leitern wurde dieser Lift für behinderte Personen entwickelt, die nur sitzend ins Schwimmbecken ein- und wieder aussteigen können. Der hydraulische Lift erleichtert Ein- und Ausstieg und ist eine Hilfe für den Betreuer durch eine integrierte Leiter. Der Hebesitz ist CE-Zertifiziert und für private Schwimmbäder.
- Betriebsarten Hinunter: Wenn der Benutzer den seitlichen Hebel betätigt, beginnt das automatische Absenken des Sitzes, das aus dem Kolben abgelassene Wasser fliest ins Schwimmbecken.
- Hinauf: Wird der Schlüssel erneut betätigt, fährt der Sitz in seine ursprüngliche Lage zurück, da das Wasser aus der Wasserleitung den Kolben wieder mit Wasser füllt. Der Wasserverbrauch für jeden Zyklus beträgt ca. 7 Liter.
Installation: Die Befestigung erfolgt mit zwei Metalleinbauhülsen (im Lieferumfang enthalten) und zwei einstellbaren, vorderen Stützvorrichtungen, mit denen der Lift an die verschiedenen Beckenformen angepasst werden kann.
Rohrkonstruktion mit Holmdurchmesser 43 mm aus poliertem Edelstahl V4A, an der eine hydraulische Konstruktion mit Kunststoffsitz angebracht ist. Seitlich ist eine Leiter für den Helfer integriert. Für die Hydraulik ist ein Wasserdruck von 3,5 bar notwendig.
Technische Merkmale:
- Notwendiger Wasserdruck (Wasserleitung oder eine andere Quelle) zwischen 3 und 5 kg/cm²
- Hubfähigkeit bis zu 115 kg
- Drehbewegung 100°
- Alle metallischen Teile sind aus Edelstahl V4A hergestellt

Fluidra Deutschland GmbH
Bauhofstr. 18d
63762 Großostheim
www.astralpool.com/de/
Sicherheitstechnische Angaben in der Bedienungsanleitung und Anleitungsblättern, die dem Schwimmbecken beigefügt sind.
Vor dem Bau und der Benutzung des Schwimmbeckens müssen sämtliche Informationen in der Betriebsanleitung sorgfältig gelesen und verstanden werden. Warnhinweise, Anleitungen und Sicherheitsrichtlinien umfassen einige allgemeine Risiken in Bezug auf Freizeitbeschäftigung im Wasser, sie können jedoch nicht sämtliche Risiken und Gefährdungen in allen Fällen behandeln. Bei jeglicher Aktivität im Wasser wird Vorsicht, gesunder Menschenverstand und gutes Urteilsvermögen walten gelassen. Diese Angaben und Anleitungen müssen für die spätere Nutzung aufbewahrt werden.
Sicherheit von Nichtschwimmern:
• Es ist jederzeit eine ständige, aktive und wachsame Beaufsichtigung schwacher Schwimmer und Nichtschwimmer durch eine sachkundige erwachsene Aufsichtsperson erforderlich (es wird daran erinnert, dass das größte Risiko des Ertrinkens bei Kindern unter 5 Jahren besteht).
• Es wird eine sachkundige erwachsene Person bestimmt, die das Becken überwacht, wenn es benutzt wird.
• Schwache Schwimmer oder Nichtschwimmer sollten persönliche Schutzausrüstung tragen, wenn sie ins Schwimmbecken gehen.
• Wenn das Schwimmbecken nicht benutzt oder überwacht wird, werden sämtliche Spielsachen aus dem Schwimmbecken und seiner Umgebung entfernt, um zu verhindern, dass Kinder davon angezogen werden.
Sicherheitsvorrichtungen:
• Es wird empfohlen, eine Absperrung zu errichten (und sämtliche Türen und Fenster zu sichern, sofern zutreffend), um unberechtigten Zutritt zum Schwimmbecken zu vermeiden.
• Absperrungen, Beckenabdeckungen, Alarmanlagen oder ähnliche Sicherheitsvorrichtungen sind sinnvolle Hilfsmittel, ersetzen jedoch keine ständige und sachkundige Überwachung durch erwachsene Personen.
Sicherheitsausrüstung:
• Es wird empfohlen, Rettungsausrüstung (z. B. einen Rettungsring, Sanikasten) in der Nähe des Beckensaufzubewahren.
• Ein funktionierendes Telefon und eine Liste von Notrufnummern werden in der Nähe des Schwimmbeckens aufbewahrt.
Sichere Nutzung des Schwimmbeckens:
• Sämtliche Nutzer, insbesondere Kinder, werden dazu ermuntert, schwimmen zu lernen.
• Jeder der ein Schwimmbecken benutzt soll Erste Hilfe Maßnahmen (Herz-Lungen-Wiederbelebung) erlernen und diese Kenntnisse regelmäßig auffrischen. Das kann bei einem Notfall einen lebensrettenden Unterschied ausmachen.
• Sämtliche Beckenbenutzer, einschließlich Kinder, anweisen, was in einem Notfall zu tun ist.
• Niemals in flaches Wasser springen. Das kann zu schweren Verletzungen oder zum Tode führen.
• Das Schwimmbecken nicht benutzen, wenn man unter dem Einfluss von Alkohol, Drogen, Betäubungsmitteln, Medikamenten oder anderen Substanzen steht, welche die Fähigkeit zur sicheren Nutzung des Beckens beeinträchtigen können.
• Beckenabdeckungen vor dem Betreten des Schwimmbeckens vollständig von der Wasseroberfläche entfernen, wenn sie verwendet werden.
• Die Nutzer des Schwimmbeckens werden vor durch das Wasser verbreiteten Krankheiten geschützt, indem das Wasser stets aufbereitet und hygienisch unbedenklich gehalten wird. Die Richtlinien zur Wasseraufbereitung in der Gebrauchsanleitung werden zu Rate gezogen und eingehalten.
• Chemikalien (z. B. Produkte für die Wasseraufbereitung, Reinigung oder Desinfektion) außerhalb der Reichweite von Kindern aufbewahren.
• Abnehmbare Leitern sind auf einer waagerechten Fläche anzuordnen.
• Die nachstehenden nachstehenden Sicherheitszeichen müssen verwendet werden:
| Die Zeichen (in Bild B.1a und Bild B.1.b) sind an einer gut sichtbaren Stelle innerhalb von 2 m in der Nähe des Schwimmbeckens anzubringen. |
![]() ![]() |
| Es wird empfohlen, das Zeichen (in Bild B.2) an einer gut sichtbaren Stelle innerhalb von 2 m in der Nähe des Schwimmbeckens anzubringen. |
![]() |


